2C_170
- Все про проект
- Планування
- Склад проекту
- Внесення змін
- Додаткові послуги
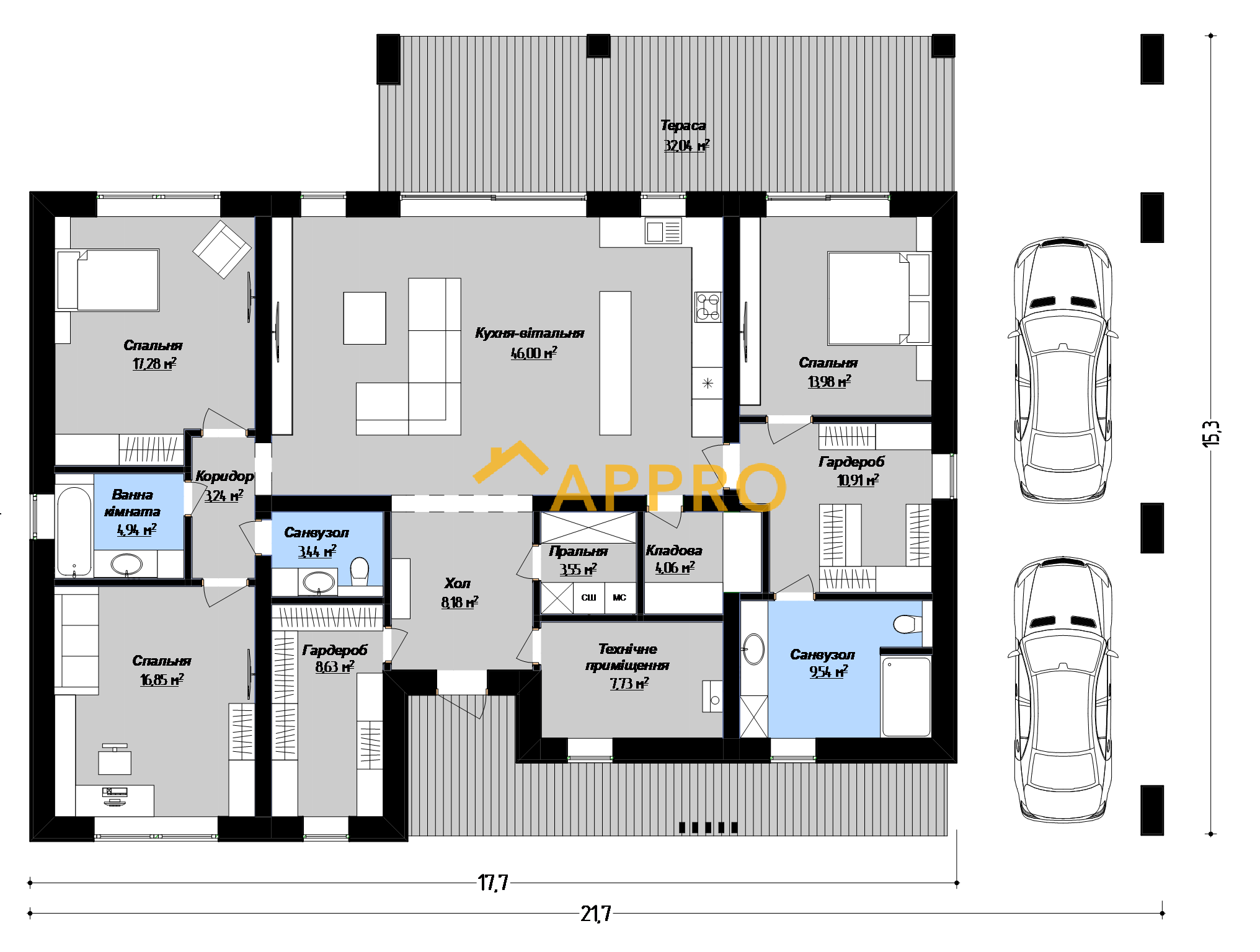
- загальна площа167.84 м2
- площа 1-го поверху1674 м2
- житлова площа81.61 м2
- площа забудови311.85 м2
- площа тераси32.04 м2
- габарити15.3 х 21.7 м
- висота 1-го поверху3 м
- стінигазоблок 400 мм +мінеральна вата 50 мм
- фундаментстрічковий
- перекриттямонолітна ж/б плита
- дахплоский
- ціна будівництва≈ 2 800 000 грн
Склад проекту
Придбаючи проект будинку в Архітектурному бюро, ви отримуєте комплект креслень - 2 екземпляри, необхідний для проведення будівельних робіт та безперешкодного отримання дозволу на будівництво.
Проект містить два розділи – Архітектурний, Конструктивний. Інженерний розділ та генеральний план можна придбати додатково. Документація видається у 2-х однакових екземплярах, середній розмір 1 екземпляра проекту 50-70 сторінок, формат А4–А3.
Подивитися приклад проекту- Загальні дані
- План поверху з розстановкою меблів
- Кладочні плани
- План даху
- Розрізи
- Фасади
- Перетини, вузли, деталі
- Відомості підлог, віконних та дверних прорізів, огороджувальних конструкцій, опорядження приміщень, заповнення прорізів
- План котловану/траншей
- План фундаменту
- Перетини фундаментів
- Розкладка блоків
- Плита по ґрунту
- Специфікація витрат сталі, матеріалів та виробів
- План монолітного поясу
- План перекриттів
- Конструкції даху
- Специфікація елементів даху
Внесення змін
Велика кількість змін у типовому проекті не надасть вашому майбутньому дому індивідуальності – він все одно залишиться типовим.
Ваше бажання і трохи більше часу наших архітекторів, дизайнерів та інженерів зроблять будинок повністю індивідуальним.

- - тип фундаменту відносно рельєфу та геологічних особливостей місцевості будівництва
- - заміна матеріалу несучих стін
- - висота приміщень, поверху
- - функціональне призначення кімнат із зміною планувальних рішень, але без змін геометрії несучих стін
- - розміри віконних та дверних прорізів і їх кількість
- - кут нахилу даху та навісів, заміна матеріалу даху
- - заміна зовнішнього оздоблення стін та цоколя
- - прибрати або додати гараж, навіс
- - виконання проекту в дзеркальному відображенні
Дізнатися вартість внесення змін і адаптації проекту під ваші побажання можна за телефоном:
+38 (050) 268 49 26
+38 (095) 268 49 26
Або заповнивши форму нижче. Після отримання заявки, ми вам передзвонимо.
Додаткові послуги
Будь-який проект, окрім основного складу, може бути доповнений за вашим бажанням та потребами.
Для уточнення вартості додаткових послуг, зателефонуйте за номером +38 (050) 26-84-926 або заповніть форму зворотного зв'язку і ми зв'яжемося з вами.
- Схема генерального плану, М1:500
- План благоустрою
- План озеленення
- План зовнішнього освітлення території
- Схема огорожі території, деталі огорожі
- Вертикальне планування
- Відомість об'ємів переміщення мас
- Опалення та вентиляція
- Вода та каналізація
- Електрика та освітлення
- План розташування меблів та обладнання
- Специфікація меблів та обладнання
- План стелі та підлоги
- План стінових декорів та декорів стелі
- Вузли та деталі
- План розташування та специфікація освітлення
- Схема розміщення вимикачів і розеток
- Розгортки приміщень
- Відомості опорядження приміщень (вказана площа матеріалів)
- Схема намірів забудови земельної ділянки
- Планування поверхів
- Фасади
- 3D-зображення